





















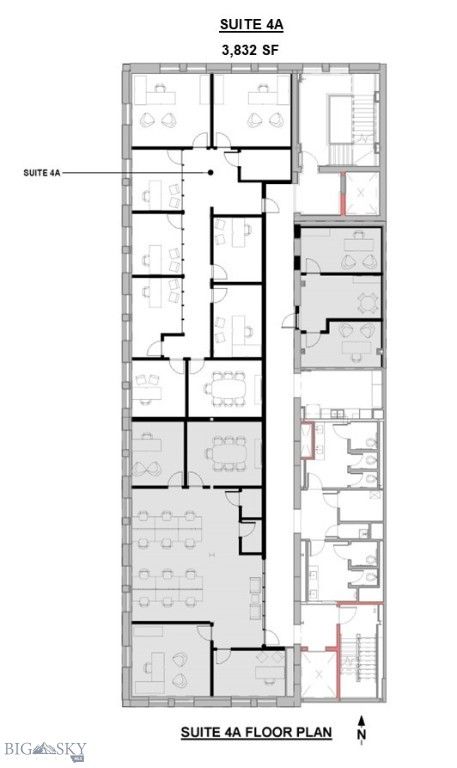
The National Building is located on the corner of East Main and Black Street, right in the middle of Downtown Bozeman. This historic Bozeman landmark was built in 1920 for Commercial National Bank - US Bank occupies the first floor and a portion of the second floor. A major restoration was completed in 2024 to bring the exterior to its original look, and the interior has been completely renovated. The National is the premier class A office building in Downtown Bozeman. The 4 additional floors of offices feature a variety of layouts and sizes to fit the needs of many different users with great access to all of the amenities Downtown Bozeman has to offer. The basement features a common conference room and tenant fitness center. Suite 4A is located on the fourth floor, and has nine private offices, a reception area and common kitchenette and restrooms.
Brad Little